DRHGreytop

Rinehart Residence, Taos Pueblo, New Mexico

A passive solar adobe home for Nyla and Albert Rinehart, Taos Pueblo.

  • Image
    A curved plaza wall connects an existing family home on the left with the proposed new residence. Computer model looking south. The "moo-oo"- like appendage rooms near the corndryers are children's computer study spaces, and are reminiscent in scale of the old Pueblo architecture nearby.
  • Image
    Computer model study showing solar side.
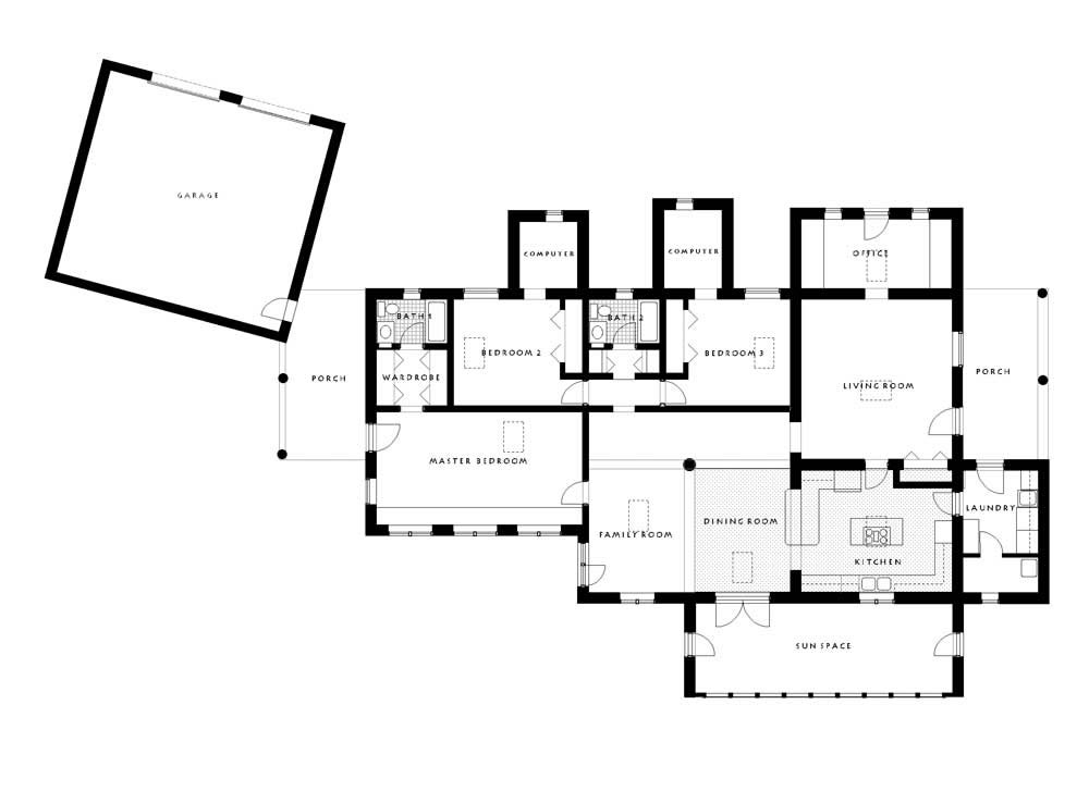
  • Image
    Plan, with north up.
Thumbnail panels:
Now Loading
© 2009, Dennis R. Holloway Architect